- 空きあり
- キャンペーン物件
CITY・BIKE西糀谷第1
賃料3ヶ月分無料キャンペーン。
(契約期間が12ヶ月以上でシティ・バイクを初めてご利用される お客様に限らさせていただきます。)
詳しくはお問い合わせください。
屋根付きバイク駐輪場
※当マンション入居者様以外の方もご契約いただけます。
| 賃 料 | 6600円 〜 11000円 |
|---|---|
| 所在地 | 大田区西糀谷4-8-10 |
| アクセス | 京急空港線「糀谷」駅歩5分 |
| 保証金 | 賃料2ヶ月 |
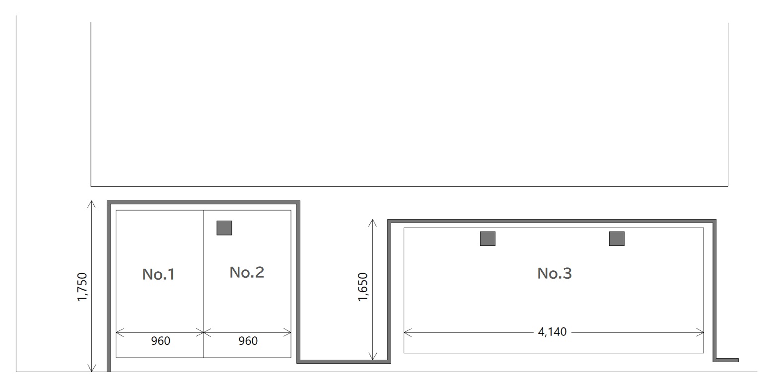
| No | 賃料(税込) | 幅 | 奥行き | 高さ | |||
|---|---|---|---|---|---|---|---|
| 空 満 | 1 | 960mm | 1750mm | - | |||
| 空 満 | 2 | 960mm | 1750mm | - | |||
| 空 満 | 3 | 4140mm | 1650mm | - |
取り扱い店舗
| 糀谷本店 TEL: 03-3742-7177 |
|---|
| 東京都大田区西糀谷4-28-18 |
| 京急蒲田店 TEL: 03-5714-7177 |
|---|
| 東京都大田区南蒲田1-1-17エスタイム1F |
| 蒲田店 TEL: 03-6861-7177 |
|---|
| 東京都大田区西蒲田7-1-3ステラビル西蒲田1F |
| 大森店 TEL: 03-3767-7177 |
|---|
| 東京都大田区大森北1-12-4大森プラザビル1F |
| 大井町店 TEL: 03-5742-7177 |
|---|
| 東京都品川区大井1-27-1シティプラザ大井町1F |
| 雪が谷店 TEL: 03-3729-7177 |
|---|
| 東京都大田区雪谷大塚町1-15 |





